Location

Ceretto Aziende Vitivinicole
Sorbo Serpico (AV)
Feudi di San Gregorio nasce nel 1986 in Irpinia, cuore montuoso della Campania, per iniziativa della famiglia Capaldo. Fin dalla sua fondazione, l’azienda ha costruito la propria identità sull’intreccio tra la valorizzazione dei vitigni autoctoni campani e un profondo legame con il mondo dell’arte, nella convinzione che il processo creativo del vino e quello artistico condividano la medesima natura generativa e trovino compimento in un dialogo tra le discipline.
Feudi di San Gregorio nasce nel 1986 in Irpinia, cuore montuoso della Campania, per iniziativa della famiglia Capaldo. Fin dalla sua fondazione, l’azienda ha costruito la propria identità sull’intreccio tra la valorizzazione dei vitigni autoctoni campani e un profondo legame con il mondo dell’arte, nella convinzione che il processo creativo del vino e quello artistico condividano la medesima natura generativa e trovino compimento in un dialogo tra le discipline.
Nel corso degli anni, il progetto si è progressivamente ampliato con la fondazione di Tenute Capaldo, iniziativa che ha riunito diverse realtà enologiche italiane mantenendo come filo conduttore l’eccellenza qualitativa, la sostenibilità e il rispetto dei territori d’origine: DUBL in Campania, Campo alle Comete a Bolgheri, Basilisco nel Vulture e Sirch nei Colli Orientali del Friuli. L’attività dell’azienda si fonda su un equilibrio tra tradizione e innovazione, valorizzato dalla collaborazione con Marco Simonit e Pierpaolo Sirch che ha portato alla creazione di FeudiStudi e alla riscoperta del Sirica, antica varietà oggi vinificata in purezza. Dal 2021, con la trasformazione in Società Benefit e B Corp, l’azienda integra qualità produttiva e responsabilità sociale, promuovendo pratiche agricole rigenerative e un modello energetico a basso impatto. In questa prospettiva si inserisce anche la collaborazione avviata nel 2024 con il Parco Archeologico di Pompei, dove Feudi cura una vigna sperimentale destinata a dar vita a un vino capace di intrecciare memoria storica e valorizzazione culturale.
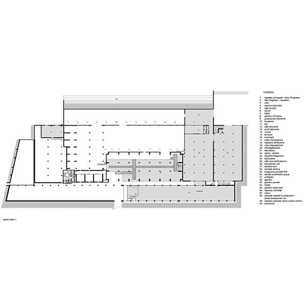
Emblema dell’identità aziendale è la nuova cantina inaugurata nel 2004 e firmata dall’architetta giapponese Hikaru Mori, in collaborazione con Maurizio Zito. L’edificio, nato dall’ampliamento della struttura originaria, si caratterizza per le linee essenziali che generano spazi dal forte valore scenografico, concepiti nel rispetto della sostenibilità ambientale. All’esterno, l’accesso alla cantina, salendo la collina verso Sorbo Serpico, è scandito da specchi d’acqua, giardini aromatici e roseti, che introducono uno spazio di accoglienza e condivisione. All’interno, la distribuzione degli spazi risponde a una duplice logica: da un lato la funzionalità produttiva, con gli ambienti ipogei dedicati alla vinificazione e la barricaia; dall’altro la dimensione rappresentativa e culturale, che si esprime nella sala di degustazione sospesa su tre livelli e nella bottaia, entrambe pensate come luoghi di incontro e di mediazione.
Attraverso gli ambienti suggestivi della cantina, il visitatore è accompagnato in un itinerario dedicato al ciclo dell’uva, durante il quale si percorrono tutte le fasi della lavorazione e dell’affinamento dei vini fino alla degustazione finale. Gli interni sono stati affidati a Massimo e Lella Vignelli, figure di riferimento del design italiano, con l’obiettivo di unire la funzionalità degli spazi di vinificazione a un’estetica contemporanea, restituendo alla viticoltura irpina un volto innovativo senza perderne l’identità storica.
Sul tetto si trova il ristorante San Gregorio, recentemente rinnovato dall’architetto Roberto Liorni. Grandi vetrate e arredi ispirati alla natura dissolvono i confini tra interno ed esterno, mentre installazioni come il Nido centrale trasformano la sala principale in uno spazio dedicato a percorsi di degustazione verticale abbinati a menù esclusivi. A completare l’esperienza, il Teatro del Vino, ideato come spazio immersivo in cui degustazione e design dialogano tra loro, e il bar Innesti, progettato nel 2022 da Astrid Luglio dopo un periodo di residenza. Il bar-installazione si configura come il punto di congiunzione tra un volume geometrico austero e un insieme di materiali grezzi che si innestano al suo interno. Tra gli elementi principali spicca l’arco del vino che, attraverso il tufo etrusco, la breccia irpina e la pietra di Fontanarosa, diventa l’emblema della realtà di Feudi di San Gregorio. Il secondo innesto è la colonna, parte strutturale e contenitiva del bancone del bar, che con le sue rotondità si contrappone alle linee nette dell’arco. L’equilibrio tra questi materiali naturali genera infinite possibilità compositive, restituendo un racconto architettonico del territorio.
Sempre a firma di Luglio è la materioteca Innesti, archivio che raccoglie e cataloga documenti e reperti sulla storia dell’azienda, offrendo ai visitatori uno strumento di approfondimento sull’operato nel territorio.
Accanto al rinnovamento architettonico degli spazi e alla cura degli arredi di design, Feudi di San Gregorio ha progressivamente sviluppato un dialogo con il mondo dell’arte, dando vita a un programma strutturato di iniziative e collaborazioni di lunga durata, oggi organicamente raccolte nel progetto Be Curious.
A partire dal 2001, Massimo Vignelli ha ideato le iconiche etichette che traducono in chiave grafica contemporanea l’anima dell’azienda. Ispirandosi agli antichi mosaici della Basilica di San Vitale e del Mausoleo di Galla Placidia a Ravenna, Vignelli ha coniugato geometria e arte, giocando su dettagli minuziosi, cromie intense, nitidezza delle forme e preziose sfumature dorate a caldo. La ridotta dimensione delle etichette rispetto ai formati tradizionali ha contribuito a renderle riconoscibili a livello internazionale.
Nel 2016 è stata avviata la collaborazione con Fabio Novembre, chiamato a disegnare la bottiglia di Dubl Esse, metodo classico a dosaggio zero. L’oggetto si articola in tre fasce orizzontali ispirate alla tiara papale di Gregorio Magno, cui l’azienda deve il nome. Per il designer, le tre corone, simbolo della Chiesa militante, sofferente e trionfante, diventano in questo contesto metafora del lavoro in vigna: un impegno che alterna fatica e sacrificio, ma si compie nel trionfo del vino.
Nel progetto Be Curious rientrano anche i contributi di artisti/e invitati a realizzare opere ispirate alla visita in azienda e collegate a un vino della gamma, con l’obiettivo di costruire una collezione di arte contemporanea campana. Nel 2011, la prima collaborazione è stata quella del duo Vedovamazzei (Simeone Crispino e Stella Scala) che con Colature ha evocato i riflessi del vino nel bicchiere utilizzando i colori delle etichette Feudi e Dubl. Nel 2013 è stata coinvolta Marinella Senatore, autrice della Collezione di Acquerelli: sei tele in bianco e nero che raccontano la costruzione della nuova cantina attraverso suggestivi chiaroscuri. Nello stesso anno, Feudi ha affidato a Mimmo Jodice la realizzazione di Immaginazioni, installazione fotografica permanente che immortala le vigne secolari di Taurasi e i dettagli iconici della cantina. Nel 2022 è stato il turno dell’artista romano Pietro Ruffo con Il Canto della Terra, un’opera ispirata alle pratiche agricole e alla vita comunitaria che ruota attorno ad esse, realizzata sulla superficie di un’anfora, simbolo ancestrale della vinificazione. Infine, nel 2023, Feudi ha ospitato i californiani Fallen Fruit (David Allen Burns e Austin Young), con l’opera A Portrait of Dionysus, un murale che ricopre la facciata esterna della dimora Botanica nel Borgo San Gregorio e continua nella struttura, accogliendo i visitatori in un mondo visionario di fiori, colori e frutti che rappresentano l’Irpinia.
Accanto a queste iniziative, dal 2014, Feudi San Gregorio è diventata anche socio fondatore della Fondazione di Comunità San Gennaro, impegnata nel superamento del disagio sociale nel rione Sanità di Napoli attraverso l’educazione all’arte e alla cultura. Da allora, Feudi trasforma le opere site-specific realizzate da fotografi, pittori e designer in etichette di edizione limitata, destinate a sostenere la fondazione guidata da Padre Loffredo, cui viene devoluto l’intero ricavato. Hanno collaborato al progetto Mimmo Jodice nel 2014, Vedovamazzei nel 2016, Marinella Senatore nel 2018, Pietro Ruffo nel 2022 e Fallen Fruit nel 2023.

Ceretto Aziende Vitivinicole

Masi

Antinori Art Project – Marchesi Antinori

Ca’ del Bosco

L”Astemia

Fattoria di Celle / Collezione Gori